«ДНІПРОМЕТИЗ ТАС» пройшов сертифікацію Deutsche Bahn
«ДНІПРОМЕТИЗ ТАС» є одним з перших українських виробників, який успішно пройшов сертифікацію зварювального дроту відповідно до вимог Deutsche Bahn.
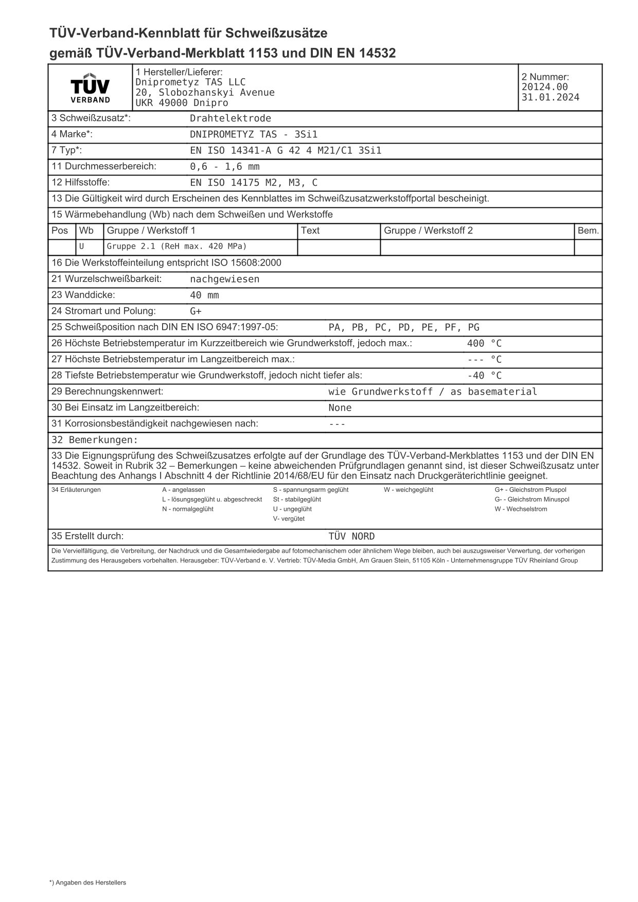
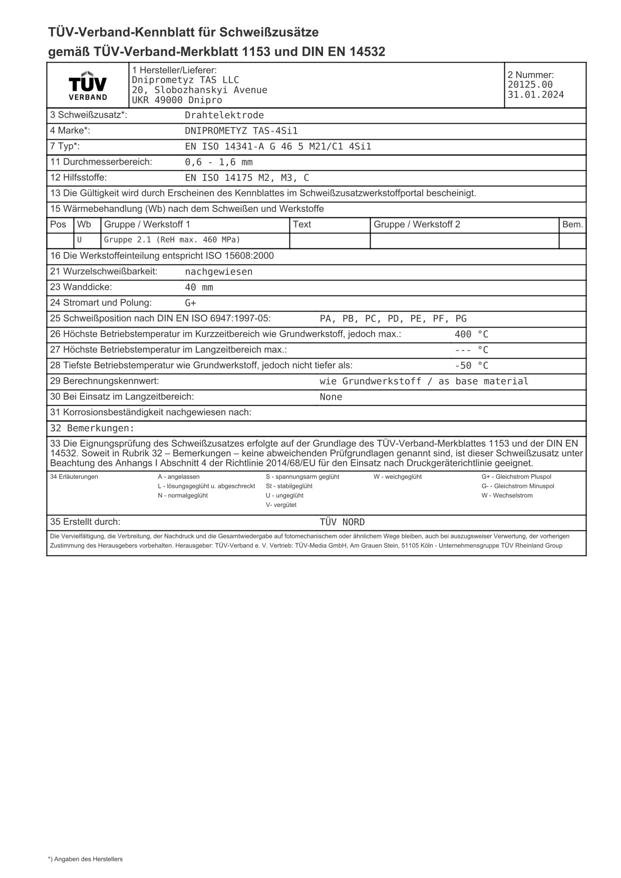
Завод «ДНІПРОМЕТИЗ ТАС» рад повідомити, що успішно пройшов заводський виробничий аудит, який проводили кваліфіковані фахівці Deutsche Bahn AG. Результатом аудиту стало завершення кваліфікаційних випробувань обмідненного легованого зварювального дроту марок 3Si1 та 4Si1, діаметром 0,6 – 1,6 мм, а також отримання сертифіката відповідності від Deutsche Bahn.
Цей сертифікат відкриває перед заводом широкі можливості для виходу на європейський ринок. Він підтверджує, що зварювальний дріт виробництва «ДНІПРОМЕТИЗ ТАС» відповідає суворим вимогам Deutsche Bahn. Наявність такого сертифіката є обов’язковою умовою для участі в тендерах однієї з вимогливих компаній Deutsche Bahn, а також інших підприємств у сфері вагонобудування, локомотивобудування та машинобудування.
Deutsche Bahn – потужний виробник у галузі вагонобудування та локомотивобудування має авторитет в сфері пасажирських та вантажних перевезень на залізничному та автомобільному транспорті в Німеччині та за її межами. Deutsche Bahn несе відповідальність за експлуатацію, обслуговування та розвиток залізничної мережі, а також за перевезення пасажирів та вантажів. Як один з найбільших транспортних операторів в Європі та у світі, Deutsche Bahn є важливим учасником у галузі мобільності та займає відповідне положення як з економічної, так і з політичної точки зору. Deutsche Bahn має авторитет як значний гравець і має суттєвий вплив на розвиток і формування транспортного сектора.
Обираючи зварювальний дріт виробництва «ДНІПРОМЕТИЗ ТАС», ви отримуєте низку переваг, які відрізняють його від конкурентів:
1. Достовірність та надійність: Сертифікація продукції Deutsche Bahn підтверджує відповідність її високим європейським стандартам якості та безпеки. Це збільшує довіру до продукції з боку клієнтів та партнерів компанії.
2. Доступ до ринку: Підтвердження відповідності продукції стандартам Deutsche Bahn відкриває доступ до галузі залізничного машинобудування, дозволяючи «ДНІПРОМЕТИЗ ТАС» брати участь у тендерах та укладати контракти з Deutsche Bahn та іншими залізничними операторами Європи, які дотримуються подібних стандартів.
3. Безпека та сумісність: Наш зварний дріт, сертифікований Deutsche Bahn, відповідає вимогам безпеки та сумісності з інфраструктурою залізничної мережі, що важливо для забезпечення надійної та безпечної роботи потягів.
4. Репутація та бренд: Сертифікація продукції Deutsche Bahn свідчить про високий рівень якості та відповідність міжнародним стандартам. Це зміцнює репутацію та бренд компанії як надійного та інноваційного постачальника зварювальних матеріалів.



